Rita Spaces to Live

Manacor · Manacor Parcela / Terreno · Venta

Manacor · Manacor Parcela / Terreno · Venta

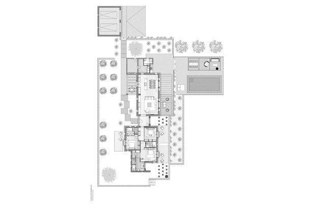
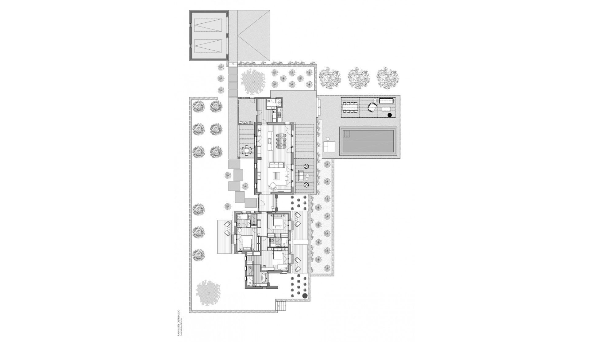
Características

Habitaciones: 1
Baños: 1
Construidos: 10m2
Parcela: 18.403m2

Descripción

Localización

Solicitar Información

Responsable del tratamiento: Properties Network SL, Finalidad del tratamiento: Gestión y control de los servicios ofrecidos a través de la página Web de Servicios inmobiliarios, Envío de información a traves de newsletter y otros, Legitimación: Por consentimiento, Destinatarios: No se cederan los datos, salvo para elaborar contabilidad, Derechos de las personas interesadas: Acceder, rectificar y suprimir los datos, solicitar la portabilidad de los mismos, oponerse altratamiento y solicitar la limitación de éste, Procedencia de los datos: El Propio interesado, Información Adicional: Puede consultarse la información adicional y detallada sobre protección de datos Aquí.
WhatsApp Llamada directa